Skip to main content

2bhk House Plan For Small Family With Kids

A well-designed house plan holds immense significance for small families with kids, especially when it comes to 2BHK (two-bedroom, hall, and kitchen) homes. With limited space available, it becomes crucial to optimize every square foot to ensure comfort, functionality, and an environment conducive to the needs of both parents and children.

The layout, organization, and thoughtful design elements play a pivotal role in creating a harmonious living space that caters to the specific requirements of a small family.

In this era of urbanization and shrinking living spaces, many families find themselves residing in compact 2BHK houses. These homes offer a balance between affordability and practicality while accommodating the needs of a small family unit.

However, due to the limited area available, it becomes essential to carefully plan the layout to maximize the utilization of space without compromising on comfort and functionality.

For small families with kids, a well-designed 2BHK house plan can address various aspects of their daily lives. It can provide dedicated areas for children to play, study, and grow, while also ensuring that parents have a comfortable and efficient living environment.

The arrangement of rooms, furniture, storage solutions, and the overall flow of the house significantly impact the quality of life experienced by both parents and their children.

A well-thought-out house plan considers the unique requirements of each family member. It provides ample space for children to explore their creativity and engage in activities, promoting their overall development. Simultaneously, it considers the privacy, relaxation, and organization needs of the parents, creating a home environment where everyone can thrive.

Moreover, an intelligently designed 2BHK house plan takes into account future needs and adaptability. As children grow, their needs change, and the house plan should be flexible enough to accommodate these transformations. It should allow for room expansions, additional storage options, or the possibility of converting spaces to meet evolving requirements.

Factors to Consider for Designing a 2BHK House for a Small Family with Kids

When designing a 2BHK house for a small family with kids, several key factors should be carefully considered to ensure an optimal living space. By taking these factors into account, the design process can result in a functional, comfortable, and child-friendly home. The following are some important considerations:

Space Optimization

With limited square footage available, space optimization is crucial. Efficient space planning and utilization should be prioritized to maximize the functionality of each area. Smart storage solutions, multipurpose furniture, and thoughtful layout design can help make the most of the available space.

Safety Measures

Safety is of utmost importance, especially when there are young children in the family. The design should incorporate safety features such as rounded corners, childproofing measures, secure railings, and non-slip flooring. Electrical outlets should be placed strategically and at a safe height to prevent accidents.

Child-Friendly Spaces

It is essential to create dedicated spaces for children within the house. This could include a designated play area, a study corner, or a small nursery for infants. These spaces should be designed with the child's needs and safety in mind, incorporating age-appropriate furniture, easy-to-clean surfaces, and ample storage for toys and books.

Privacy for Parents

While considering the needs of children, it is equally important to provide privacy and personal space for parents. The layout should allow for a separate master bedroom and a comfortable living area where adults can relax and unwind. Adequate sound insulation can also be incorporated to minimize disruptions between adult and children's spaces.

Functional Layout

The overall layout of the house should be intuitive and practical. The positioning of bedrooms, bathrooms, kitchen, and living areas should be well-planned to ensure ease of movement and functionality. Consideration should be given to factors such as natural light, ventilation, and views to create a pleasant living environment.

Flexibility and Future Adaptability

As children grow, their needs and preferences change. The house design should be flexible enough to accommodate these changes. Consider including convertible spaces or multi-functional rooms that can be repurposed as the family's needs evolve. This allows for adaptability without the need for major renovations or expansions.

Outdoor Spaces

If possible, integrating outdoor spaces like a small balcony, terrace, or garden can be beneficial for a small family with kids. These spaces provide opportunities for outdoor play, relaxation, and connection with nature, promoting physical and mental well-being.

Adequate Storage

Ample storage is essential in a 2BHK house to keep the living areas organized and clutter-free. Consider incorporating built-in storage solutions, such as cabinets, closets, and shelves, to maximize storage capacity while minimizing visual clutter.

Energy Efficiency

Energy-efficient design elements can help reduce utility bills and minimize the environmental impact. Consider incorporating features like proper insulation, energy-efficient appliances, LED lighting, and good ventilation systems to create an eco-friendly home.

Accessibility

Designing the house with accessibility in mind ensures that it is user-friendly for all family members, including children, elderly individuals, or individuals with mobility challenges. This may involve features like wider doorways, ramps, and grab bars in the bathroom.

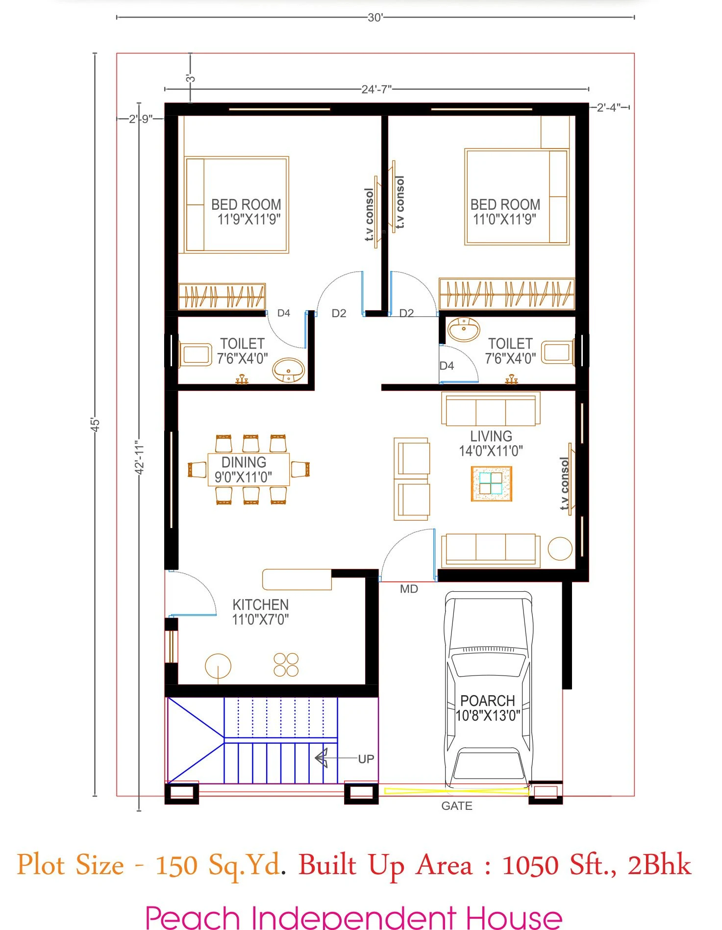
Essential Rooms and Areas in a 2BHK House Plan for Families with Kids

When designing a 2BHK house plan for families with kids, it is essential to include specific rooms and areas that cater to the needs of both parents and children.

These spaces should promote comfort, functionality, and a conducive environment for the entire family. The following are the necessary rooms and areas to consider

Master Bedroom

The master bedroom is the primary sleeping space for parents. It should be designed to provide privacy, comfort, and relaxation. Ample storage solutions, such as built-in closets or wardrobes, can help keep the room organized. If possible, incorporating an en-suite bathroom enhances convenience and privacy.

Children's Bedroom

A dedicated children's bedroom is crucial for creating a personalized space for kids. It should accommodate their sleeping arrangements, study area, and storage for toys and belongings. The room can be designed based on the age and gender of the children, incorporating age-appropriate furniture, playful colors, and a cheerful ambiance.

Living Area

The living area serves as a communal space for the entire family to spend quality time together. It should be spacious, comfortable, and inviting. Consider including a combination of seating options, such as a sofa, chairs, and a coffee table. The living area can also serve as a multipurpose space, accommodating activities like family gatherings, playtime, and relaxation.

Kitchen

The kitchen is a vital area in any house plan, and it should be designed for efficiency and functionality. Consider incorporating sufficient counter space, storage cabinets, and essential appliances. In a 2BHK layout, an open or semi-open kitchen concept can create a sense of spaciousness and facilitate interaction between family members while preparing meals.

Dining Area

The dining area should be conveniently located near the kitchen and the living area. It can be a separate room or a part of the living area, depending on the available space. A dining table and chairs that can accommodate the family comfortably should be included. This area is where the family can gather for meals and engage in conversations.

Study Area

Designating a study area is essential, especially as children grow older. It can be a dedicated room or a small corner within the children's bedroom or the living area. Providing a desk, chair, and storage for books and school supplies encourages a focused and organized study environment for children.

Play Area

Children need a designated space for play, exploration, and creativity. This can be a separate room or a specific area within the living room or children's bedroom. Consider incorporating storage solutions for toys, a play mat or rug, and child-sized furniture to create a safe and stimulating play area.

Bathroom(s)

The house plan should include at least one shared or common bathroom, preferably located near the bedrooms. It should be designed to accommodate the needs of both adults and children. Features such as a bathtub, low-height sink for children, and sufficient storage for toiletries are beneficial.

Storage Area

Ample storage is essential in a 2BHK house plan to keep the living areas organized. Consider incorporating built-in closets, cabinets, and shelves throughout the house to maximize storage capacity. Additional storage options can be included in the hallway, under the staircase, or in the utility area.

Space Optimization Techniques for a 2BHK House with Kids in Mind

When designing a 2BHK house plan for a family with kids, space optimization becomes crucial.

Maximizing the efficiency of available space ensures that every square foot is utilized effectively, providing comfort, functionality, and a clutter-free environment. Here are some practical tips and ideas for space optimization

Open Floor Plan

Consider incorporating an open floor plan that combines the living area, dining area, and kitchen. This design creates a sense of spaciousness and allows for better flow and interaction between family members. Removing unnecessary walls and partitions can make the overall space feel larger.

Multi-Functional Furniture

Choose furniture pieces that serve multiple purposes. For example, opt for a sofa bed or a daybed that can be used for seating during the day and transformed into a sleeping area at night. Look for coffee tables with hidden storage compartments or ottomans with built-in storage. These furniture choices help save space while providing additional functionality.

Built-in Storage Solutions

Utilize built-in storage options to maximize space efficiency. Install floor-to-ceiling cabinets or shelves in the living area, bedrooms, and kitchen. Consider utilizing vertical wall space for storage, incorporating wall-mounted shelves or hanging organizers. Built-in wardrobes or closet systems can effectively store clothing and accessories, keeping the bedrooms clutter-free.

Wall-Mounted Desks and Foldable Tables

Instead of bulky desks or dining tables, opt for wall-mounted desks or foldable tables that can be easily folded and tucked away when not in use. These space-saving solutions provide work or dining areas as needed while allowing for more floor space when not in use.

Bunk Beds and Loft Beds

In the children's bedroom, consider using bunk beds or loft beds to save floor space. This design allows for multiple sleeping areas while leaving room for play or study underneath. Some bunk beds also come with built-in storage compartments, further optimizing space usage.

Sliding Doors and Pocket Doors

Traditional swinging doors can take up valuable space. Consider using sliding doors or pocket doors to separate rooms instead. These space-saving door solutions free up floor space and provide a more streamlined look to the interiors.

Utilize Vertical Space

Make the most of vertical space by incorporating tall storage units, such as bookshelves or cabinets that extend to the ceiling. Use wall-mounted hooks or pegboards for hanging items like coats, bags, or children's backpacks. Utilizing vertical space effectively helps declutter the floor and creates a more organized environment.

Mirrors and Reflective Surfaces

Strategically place mirrors or reflective surfaces in the house to create an illusion of larger space. Mirrors can visually expand the room and reflect natural light, making the interiors brighter and more open.

Proper Lighting

Adequate lighting plays a significant role in making a space feel more spacious. Maximize natural light by using sheer curtains or blinds that allow sunlight to enter the rooms. Additionally, incorporate well-placed artificial lighting, including ceiling lights, wall sconces, and task lighting, to eliminate dark corners and make the space feel more open and inviting.

Outdoor Extension

If possible, create an outdoor extension such as a balcony, terrace, or patio. These areas can serve as additional living spaces and provide an opportunity to enjoy fresh air and outdoor activities without sacrificing indoor square footage.

Creating a Child-Friendly Environment in a 2BHK House

Designing a child-friendly environment is crucial in a 2BHK house to ensure the safety, well-being, and engagement of children.

By incorporating appropriate design recommendations and strategies, parents can create a space that is not only visually appealing but also promotes the healthy development and happiness of their children. Here are some key recommendations to consider:

Childproofing Measures

Implement childproofing measures throughout the house to create a safe environment. Install safety gates at stairways and balconies to prevent falls. Secure heavy furniture and appliances to the walls to avoid tipping hazards. Cover electrical outlets and use cord organizers to keep electrical cords out of reach. Place corner guards on sharp furniture edges to prevent injuries.

Soft and Durable Materials

Opt for child-friendly materials that are soft and durable. Choose furniture upholstered with stain-resistant fabrics that are easy to clean. Use washable rugs or carpet tiles in play areas to provide comfort and protect against accidental falls. Consider using child-safe paint on walls, preferably low in VOC (volatile organic compounds), to maintain a healthy indoor environment.

Playful and Stimulating Colors

Incorporate playful and stimulating colors in the children's bedroom and play areas. Vibrant hues can foster creativity and stimulate imagination. Consider using colorful wallpaper, accent walls, or themed decorations to create an engaging and visually appealing environment for children.

Safe Flooring

Select flooring materials that are safe and suitable for children. Opt for non-slip surfaces, such as vinyl or cork flooring, to minimize the risk of slips and falls. If using carpet, choose low-pile options that are easy to clean and maintain. Avoid using rugs with loose threads or slippery backing.

Age-Appropriate Furniture

Choose age-appropriate furniture for children's bedrooms and play areas. Use child-sized tables and chairs for study or play. Incorporate adjustable furniture options, such as adjustable desks and chairs, to accommodate children as they grow. Avoid furniture with sharp edges or protruding parts that may pose a risk of injury.

Ample Storage for Toys and Supplies

Ensure sufficient storage options for toys, books, and art supplies. Utilize built-in cabinets, shelves, and storage bins to keep the space organized and minimize clutter. Consider labeling storage containers to encourage tidiness and make it easier for children to locate their belongings.

Playful and Functional Layout

Design the layout of the children's bedroom and play areas to be playful and functional. Create designated zones for different activities, such as sleeping, studying, and playing. Use wall decals, murals, or themed furniture to add a touch of imagination. Arrange furniture and play equipment to allow for easy movement and ample open space for play.

Learning and Creativity Spaces

Dedicate an area for learning and creativity within the house. Set up a study corner with a desk, chair, and adequate lighting. Provide storage for books, school supplies, and artistic materials. Consider a chalkboard or whiteboard wall for artistic expression and learning.

Safety Features in Bathrooms

Ensure the bathrooms are child-friendly and incorporate safety features. Use non-slip mats in the bathtub and shower areas. Install adjustable showerheads at a suitable height for children. Place step stools or platforms to help children access sinks and toilets safely. Keep cleaning supplies and toiletries out of reach or in locked cabinets.

Outdoor Play Opportunities

If possible, create outdoor play opportunities. Set up a small play area in the balcony or terrace with age-appropriate toys and activities. Ensure the area is safely enclosed to prevent accidental falls. If there is access to a shared outdoor space or a nearby park, emphasize its importance as a place for outdoor play and exploration.

Incorporating Storage Solutions in a 2BHK House Plan for Families with Kids

Storage is a crucial aspect of maintaining an organized and clutter-free 2BHK house, especially for families with kids. By incorporating various storage options and clever solutions, it becomes easier to keep belongings tidy and accessible. Here are several storage ideas to consider

Built-in Cabinets and Shelves

Utilize built-in cabinets and shelves to maximize storage capacity. Install floor-to-ceiling cabinets in the kitchen, bedrooms, and living area to efficiently store items. Incorporate adjustable shelves to accommodate different-sized belongings. Customized built-in storage solutions can be designed to fit specific needs and optimize available space.

Under-bed Storage

Utilize the space under beds for storage. Choose beds with built-in drawers or opt for under-bed storage containers. This area can be used to store out-of-season clothing, extra linens, or toys. By utilizing this often-overlooked space, you can free up closet space and keep the bedroom organized.

Wall-Mounted Shelves and Racks

Install wall-mounted shelves and racks in various areas of the house. These can be used to store books, display decorative items, or keep frequently used items easily accessible. Consider using hooks or pegboards to hang coats, bags, and accessories, saving floor and closet space.

Multifunctional Furniture with Storage

Choose furniture pieces that serve multiple purposes and incorporate storage. Look for sofas, ottomans, or coffee tables with built-in storage compartments. Use benches with hidden storage in the entryway or dining area. These multifunctional furniture items help declutter the space while providing additional seating or storage options.

Vertical Storage Solutions

Make use of vertical wall space for storage. Install wall-mounted hooks, pegboards, or magnetic strips in the kitchen, entryway, or children's rooms. These can hold items like utensils, keys, small tools, and children's accessories. Vertical storage solutions maximize space efficiency and keep frequently used items within reach.

Overhead Storage in the Kitchen

Create overhead storage in the kitchen to maximize space. Install cabinets that extend to the ceiling to take advantage of vertical space. Use these cabinets to store less frequently used items, such as large serving dishes or seasonal cookware. Step stools can be kept nearby to access higher storage areas.

Cube Storage Units

Cube storage units provide versatile storage solutions in various sizes. They can be used in living areas, bedrooms, or play areas to store toys, books, and other belongings. These units offer both open and concealed storage options and can be easily customized with fabric bins or baskets.

Floating Shelves

Floating shelves are an excellent way to add storage without taking up floor space. Install them in the kitchen for cookbooks and spices, in the living area for displaying decorative items or family photos, or in the children's rooms for books and toys. Floating shelves offer a stylish and practical storage solution.

Storage Benches

Incorporate storage benches in the entryway or children's rooms. These benches provide seating while offering storage space underneath. They can be used to store shoes, outdoor gear, or children's toys, keeping the area organized and clutter-free.

Utilize Closet Space Effectively

Maximize the use of closet space by installing additional shelves, drawers, or hanging organizers. Use dividers or organizers to keep clothing, accessories, and toys neatly organized. Consider utilizing vertical space with double-hanging rods or cascading hangers to maximize storage capacity.

Balancing Aesthetics and Functionality in a 2BHK House Plan

Designing a visually appealing 2BHK house while considering the functional requirements of a small family with kids requires finding a balance between aesthetics and practicality. By integrating both aspects, you can create a space that is visually pleasing, comfortable, and functional. Here are some insights to achieve this balance:

Optimize Layout and Flow

Start by optimizing the layout to ensure smooth traffic flow and maximize space utilization. Consider an open floor plan that connects the living, dining, and kitchen areas. This not only enhances the sense of spaciousness but also allows for better interaction and supervision between family members. Place an emphasis on functionality when arranging furniture and ensure there is ample space for movement and activities.

Selecting Appropriate Colors and Materials

Choose colors and materials that are visually appealing and practical for a family-friendly environment. Neutral or light-colored walls create an illusion of space and can make the rooms feel brighter. Introduce pops of color through accessories, artwork, or accent walls. Select durable and easy-to-clean materials such as stain-resistant fabrics, vinyl or cork flooring, and low-maintenance countertops. This combination of aesthetics and practicality ensures a visually pleasing and family-friendly design.

Incorporate Child-Friendly Elements

When designing for a small family with kids, it's essential to incorporate child-friendly elements without compromising on aesthetics. Opt for furniture with rounded edges or soft corners to prevent injuries. Use washable and durable fabrics that can withstand spills and stains. Consider playful and age-appropriate design elements in the children's rooms or play areas, such as themed wall decals, colorful furniture, or interactive decor items. By integrating these elements, you can create a visually appealing space that appeals to both adults and children.

Focus on Storage and Organization

Prioritize storage and organization solutions to maintain a clean and clutter-free environment. Choose furniture pieces with built-in storage compartments or invest in standalone storage units that blend seamlessly with the overall design. Ensure that storage solutions are not only functional but also visually pleasing, such as using decorative bins, baskets, or stylish shelving. When everything has its designated place, it enhances the aesthetic appeal of the space.

Incorporate Natural Light

Natural light can significantly enhance the aesthetics of a space while offering numerous health benefits. Maximize natural light by using sheer or light-filtering window treatments that allow sunlight to enter the rooms. Arrange furniture to avoid blocking natural light sources, and use mirrors strategically to reflect light and create an illusion of space. Natural light adds warmth, freshness, and a sense of openness to the overall design.

Seamless Integration of Technology

Consider the seamless integration of technology to enhance both aesthetics and functionality. Choose sleek and modern electronic devices that blend harmoniously with the design scheme. Conceal wiring and cords to maintain a clean and clutter-free look. Explore options for smart home technology that can improve energy efficiency, convenience, and entertainment within the house.

Thoughtful Space Planning

Thoughtful space planning is essential to ensure every area serves its intended purpose. Assess the specific needs of your family and allocate space accordingly. Create designated zones for different activities such as sleeping, working, playing, and entertaining. Utilize multifunctional furniture and flexible spaces that can adapt to changing needs. This allows the house to evolve with the family over time.

Incorporate Personal Touches

Finally, don't forget to incorporate personal touches that reflect the family's unique style and personality. Display family photos, artwork, or sentimental objects that add a personal touch to the design. Integrate elements that hold meaning for the family members, creating a sense of warmth and connection to the space.

Vastu Shastra Principles for Designing a 2BHK House for a Family with Kids

Vastu Shastra is an ancient Indian architectural science that aims to harmonize the energy flow within a living space. While its application is subjective and based on individual beliefs, understanding the basic principles of Vastu Shastra can help guide the design of a 2BHK house for a family with kids. Here are some key principles and suggestions to consider

Orientation

The orientation of the house plays a significant role in Vastu Shastra. Ideally, the main entrance should face the east or north direction to allow the influx of positive energy. If possible, design the main door of the house to align with these directions. However, if the orientation of the plot does not permit this, consult a Vastu expert for suitable remedies or adjustments.

Bedroom Placement

The placement of bedrooms is crucial for the well-being and harmony of the family members. The master bedroom is typically recommended in the southwest direction of the house, while children's bedrooms can be located in the west or northwest direction. Avoid placing bedrooms in the northeast direction as it is considered inauspicious in Vastu Shastra.

Kitchen Placement

The kitchen holds significance in Vastu Shastra as it is associated with the nourishment and well-being of the family. Ideally, the kitchen should be placed in the southeast corner of the house. This direction is believed to enhance positive energy and promote good health. Ensure that the cooking platform faces east or south while avoiding positioning it in front of the main entrance or directly below a bathroom.

Living Area

The living area serves as a space for socializing and relaxation. It is recommended to place the living area in the northeast or north direction to harness positive energies. Design the space to be well-lit and open, allowing ample natural light and fresh air to flow through. Incorporate comfortable seating arrangements that encourage conversation and interaction.

Bathroom Placement

Bathrooms should ideally be located in the northwest or west direction of the house. It is important to keep the bathrooms separate from the kitchen and bedrooms to maintain hygienic and energetic balance. Ensure proper ventilation and hygiene practices in the bathroom to maintain a positive energy flow.

Colors and Décor

Vastu Shastra suggests specific colors for different areas of the house. For example, soothing and light colors are recommended for bedrooms, while vibrant and energizing colors can be used in living areas. Incorporate natural elements like plants or natural materials to bring a sense of balance and tranquility. However, it is essential to prioritize personal preferences and individual aesthetics while incorporating these suggestions.

Clutter-Free and Well-Organized Space

Vastu Shastra emphasizes the importance of cleanliness and clutter-free spaces. Keep the house well-organized, free from unnecessary clutter, and maintain a sense of cleanliness throughout. This promotes a positive flow of energy and creates a peaceful and harmonious environment.

Harmonious Elements

Vastu Shastra suggests incorporating harmonious elements such as water features, natural light, and proper ventilation in the house. Consider incorporating a small indoor water fountain or a well-maintained aquarium to attract positive energy. Maximize natural light and ventilation by incorporating large windows, skylights, or air-purifying plants.

Budget-Conscious Design Strategies for a 2BHK House Plan for Families with Kids

Designing a stylish and functional 2BHK house plan on a budget requires careful planning and smart decision-making. By implementing cost-effective ideas and strategies, you can create an affordable yet attractive living space for your family. Here are some tips to consider:

Determine Priorities

Start by determining your priorities and focus on essential areas. Identify the rooms and spaces that are most important to your family's needs and allocate the majority of your budget to those areas. For example, prioritize the bedrooms, kitchen, and living area while considering cost-saving options for less frequently used spaces like the guest room or utility areas.

Optimize Space

Make the most of the available space by optimizing the layout and functionality. Avoid unnecessary partitions or walls that can increase construction costs. Open floor plans can create a sense of spaciousness without the need for additional square footage. Utilize multifunctional furniture that serves multiple purposes, such as sofa beds or storage ottomans, to maximize space efficiency.

Simple and Practical Design

Keep the design simple and practical to minimize costs. Choose clean lines and timeless styles that will remain relevant for years to come. Avoid overly intricate or trendy designs that may require frequent updates or renovations. Focus on functionality and select durable materials that offer long-term value.

DIY and Upcycling

Embrace do-it-yourself (DIY) projects and upcycling to save on costs. Consider tackling minor renovations or installations yourself if you have the necessary skills and knowledge. Repurpose existing furniture or decorative items by giving them a fresh coat of paint or incorporating them into new designs. Thrift stores, flea markets, or online marketplaces can also be great sources for affordable furniture and decor pieces.

Smart Material Selection

Opt for cost-effective materials that offer good quality and durability. Research and compare prices before making material selections. For example, laminate or vinyl flooring can be a more affordable alternative to hardwood or ceramic tiles. Consider using cost-effective yet visually appealing options for countertops, such as laminate or solid surface materials.

Energy Efficiency

Incorporate energy-efficient elements into your house plan to save on long-term utility costs. Choose energy-efficient appliances, LED lighting, and insulation materials to reduce energy consumption. Proper insulation and ventilation can help maintain a comfortable indoor environment without excessive reliance on heating or cooling systems.

Strategic Lighting

Enhance the ambiance of your house with strategic lighting. Well-placed lighting fixtures can create a cozy and inviting atmosphere without breaking the budget. Consider installing dimmer switches to control the intensity of lighting in different areas. Utilize natural light by maximizing window openings and using light-filtering window treatments to reduce the need for artificial lighting during the day.

Minimalistic Approach

Embrace a minimalistic approach to decor and furnishings. Instead of overcrowding the space with unnecessary items, focus on a few statement pieces that reflect your style. Emphasize functionality and choose multi-purpose furniture that eliminates the need for additional pieces. Create a clean and clutter-free environment, which not only looks visually appealing but also gives the illusion of a larger space.

Comparison Shopping and Negotiation

Take the time to compare prices from different suppliers and contractors. Request quotes and negotiate prices to ensure you get the best value for your money. Be open to exploring alternative options or materials that offer similar benefits at a lower cost. Remember to balance cost savings with quality and durability to avoid compromising on the longevity of your house.

Phased Approach

If budget constraints are significant, consider a phased approach to your house plan. Start with the essential areas and gradually expand or improve over time as your finances allow. This approach allows you to spread out costs and make adjustments based on your family's evolving needs.

2bhk 25 × 30 East face house plan - YouTube


20u0027x50u0027 North Face 2bhk House Plan Explain In Hindi - Youtube


25 More 2 Bedroom 3D Floor Plans
30 X 36 East Facing Plan Without Car Parking 2bhk House Plan


1250 sq ft 2 BHK Floor Plan Image - S V Builders Avenues Available


Floor Plan for 30 X 40 Feet Plot 2-BHK 1200 Square Feet 133 Sq


Floor Plan for 40 X 60 Feet Plot 4-BHK 2400 Square Feet 267 Sq


Home Design 30 X 40 Home Design 30 X 40 Best Of Image 01


Home Design 30 X 40 Home Design 30 X 40 Best Of Image 02


House Plans- Best affordable Architectural service in india 1st-300x213


Janapriya Engineers Syndicate Builders Janapriya Metropolis Floor


My Home Constructions My Home Jewel Floor Plan - Madinaguda Hyderabad