How To Draw Bar Floor Plans
By Abu Rizal at: March 24, 2020
This article contains bar floor plans for kitchens, living rooms and other bar rooms you may have in your home. The plans are easy to read, and they contain illustrations of typical bar floor plans including kitchen, living room, and bar-room floor plans. They also include details on how to make a floor with concrete walls.
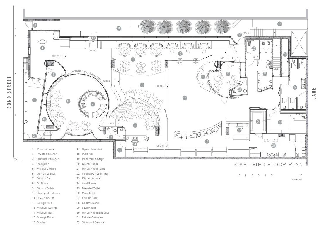
Bar Floor Plans Ideal For bar and grill floor plans - Google Search Restaurant layout
The best part of these bar floor plans is the fact that the plans include many alternative ideas to the typical bar design
For instance, the bar floor plans kitchen included here were designed by four university students with over 200 combined hours of project work experience between them
The bar floor plans include several concepts that you will never see in a typical bar, including restaurant floor plans and pool bar floor plans
The student realized that there needs to be more than four basic pub designs in order for the bar-room design to be satisfactory
Most of the Bar Floor Plans are based on the idea of a tropical-themed bar
A common scene would have palm trees on the interior with fish and coconut trees on the exterior, with the bar as the centerpiece
The student chose to make use of the native botanicals found at the cafe he worked at, namely: Bahia Solano, which are species of sweet pepper; Mano Juan, a palm; and the Harbourside Holdingu0027s, which are a rare sweet pepper
He also made good use of the textures and colors from the various ingredients to design his unique bar floor plans
The bar floor plans kitchen designed by the student also has tropical themes
The floor plan starts with a large glass window in the middle of the room with beautiful wooden shutters on either side of it
The four-corner shelves are used to display the drinks and the island teapot
There is also a sink with a waterfall that faces the window
This type of house floor plan is suitable for small intimate dinners and it fits well in a tropical-themed restaurant or cafe
After making the basic Bar Floor Plans, the student then went to work on the actual drawings
It was quite difficult because he only had rough drawings to work with
This was the first time that he made use of graph paper, and although he knew that he wanted a tropical theme for the house floor plans, he was not very sure how to draw it
After some help from his friend, who was an excellent graphic artist, he was able to get some help in the drawing process
His friend even bought him a graph paper to help him with the rough drawings
After creating his basic and rough drawings, the next thing that he needed to do was to create his business plans
The business plans were relatively easy as long as he followed the general principles of using graph paper to draw his business field
His business plans basically consisted of the bar in the background, a couple of tables to put his customers at, and his prices and special offers
After completing the business plans, he was ready to start making the bar floor plans
After drawing the floors, the next step that he needed to complete for his house floor plans was to create the tables and booths that would be used in his restaurant
In order to do this, he again went to his friend's house and used graph paper to create the tables
Once again he followed the general principles by placing the chairs in the back of the bar
After creating the tables, he was finally ready to make the countertops
To create the countertops, he again went to his friend's house and created the booths that would be used in selling his burgers
After completing all of these basic steps, he was finally ready to start putting his bar plans together
To make this easier for him, he took some advice from his friend on how to build his bar stool
They both knew that it was very important that the stools fit well with the bar and tables, as this would make them much easier to store when not in use
When placing the stools on the bar table, they made sure that the stools were level so that they would not be tipped over while in use
Then he took the measurements of his bar area and used them to draw out his kitchen countertop plans
Once he was finished with drawing out his bar plans, he was ready to start making the kitchen countertops














