Skip to main content

14x40 Cabin Floor Plans: Your Guide to Small Space Living


If you're looking for a cozy and comfortable space to call your own, a 14x40 cabin might be just what you need.

This compact living space can be the perfect solution for those looking to downsize, simplify their lives, or just have a weekend getaway in the woods.

In this article, we'll explore some 14x40 cabin floor plans to help you get started on your tiny home journey.

Plan 1: The Studio Cabin

The first plan we'll explore is the Studio Cabin, which is a one-room layout that includes a bathroom and kitchenette.

This design is perfect for those who don't need a lot of space and want to keep things simple.

The open-concept layout allows for easy flow throughout the cabin, and the large windows provide plenty of natural light.

Plan 2: The Loft Cabin

For those who need a bit more space, the Loft Cabin is a great option. This design features a living room, kitchen, bathroom, and a sleeping loft.

The loft can be accessed via a ladder or staircase and provides a private sleeping space. The living room and kitchen are open-concept, making the space feel larger than it is.

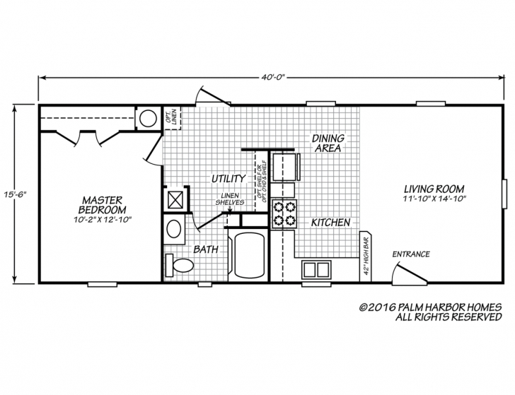
Plan 3: The One-Bedroom Cabin

If you're looking for a bit more privacy, the One-Bedroom Cabin might be the perfect fit. This design features a separate bedroom, a living room, a kitchen, and a bathroom.

The bedroom is located at the back of the cabin, providing a quiet and peaceful space to rest.

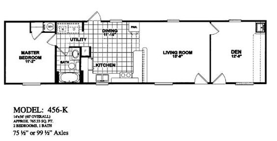
Plan 4: The Two-Bedroom Cabin

For those who need more space for family or guests, the Two-Bedroom Cabin might be the right choice. This design features two bedrooms, a living room, a kitchen, and a bathroom.

The bedrooms are located on opposite sides of the cabin, providing privacy for each occupant.

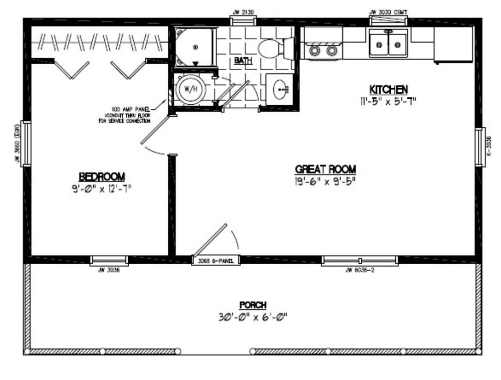
Plan 5: The Multi-Purpose Cabin

The Multi-Purpose Cabin is a versatile design that can be used for a variety of purposes.

This plan includes a living room, kitchen, bathroom, and a separate room that can be used as a bedroom, office, or storage space.

The flexible layout allows for customization to fit your specific needs.

Final Thoughts

Living in a 14x40 cabin may not be for everyone, but for those who are looking for a simpler, more minimalist lifestyle, it can be the perfect solution.

These floor plans are just a starting point, and you can customize them to fit your specific needs and preferences.

With a little creativity and ingenuity, you can transform a tiny cabin into a cozy and comfortable home.

Layout 14x40 Cabin Floor Plans


Image result for 14x40 cabin floor plans | Shed house plans, Tiny house floor plans, Cabin floor ...


14X40 Cabin Floor Plans | Cabin floor plans, Shed house plans, Tiny house floor plans


14x40 floor plans - Google Search | Cabin | Pinterest | Floors, Floor plans and Search


Image result for 14x40 floor plans | Cabin floor plans, Tiny house floor plans, Portable tiny houses


14x40 cabin floor plans | Tiny House | Pinterest | Cabin floor plans, Cabin and Tiny houses


14X40 Cabin Floor Plans | Tiny House | Pinterest


14X40 Floor Plan : 14\u00d740 cabin floor plans friv5games me on 14\u00d740 cabin floor ... : 2 bhk 30x40 ...


14x40 Floor Plans Best Of 14 X 40 Cabin Floor Plans Google Search | Cabin floor, Cabin floor ...


14X40 Lofted Cabin Floor Plans : Pictures Videos Floor Plans Welcome To Arched Cabins ...


Incredible 14\u00d740 Cabin Floor Plans - Typesoffloor 14x40 Cabin Floor Plans Photo - House Floor ...


Image result for 14x40 cabin floor plans | Shed house plans, Tiny house floor plans, Cabin floor ...


14X40 Cabin Floor Plans | Tiny House | Pinterest | Cabin, Floor plans and Search


Image result for 14 x 40 floor plans | Cabin floor plans, Cabin floor, Floor plans