11 Timber Frame Floor Plans
By Abu Rizal at: April 03, 2020
Timber frame homes are popular for their timeless beauty, structural strength, and eco-friendly nature.
When designing your dream home, the floor plan is crucial to creating a space that is both functional and aesthetically pleasing.
In this article, we will explore the various types of timber frame floor plans, their features, and the benefits of each.
What is Timber Frame Construction?
Timber frame construction is a building technique that uses large, heavy wooden beams to create the structural frame of a home.
These beams are connected using traditional joinery techniques like mortise and tenon,
resulting in a sturdy and durable frame that can last for centuries.
Timber frame construction has been used for centuries and is still popular today for its aesthetic appeal and strength.
Benefits of Timber Frame Construction
There are many benefits to building a timber frame home.First and foremost, the beauty of natural wood is unmatched. Timber frame homes have a warm,
inviting feel that can't be replicated with any other building material.
Timber frame construction is also highly energy-efficient, with excellent insulation properties that can help lower your energy bills.
Choosing a Timber Frame Floor Plan
When it comes to choosing a floor plan for your timber frame home,there are a few things to consider. First, think about your lifestyle and what you want in a home.
Do you need a lot of space for entertaining or a large family?
Or do you prefer a more intimate space for relaxation and privacy?
Consider the number of bedrooms and bathrooms you need, as well as the overall square footage of the home.
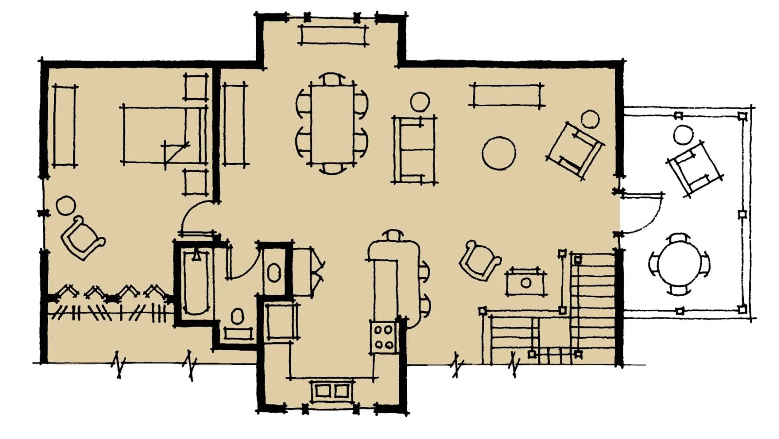
Open Concept vs. Defined Spaces
One of the most significant decisions you'll make when choosinga floor plan is whether to go for an open concept or defined spaces.
Open concept floor plans are popular for their flow and flexibility,
while defined spaces offer privacy and separation. Consider which option will work best for your lifestyle and needs.
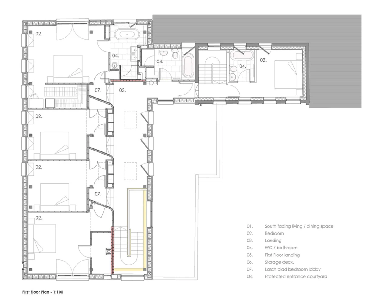
Single Story vs. Multi-Story
Another decision to make is whether to build a single-story or multi-story home.Single-story homes are often preferred for their ease of accessibility and maintenance,
while multi-story homes can offer more privacy and separation between living spaces.
Customizing Your Floor Plan
With timber frame construction, customization is key.You can work with an architect or designer to create a floor plan
that is tailored to your specific needs and preferences.
From choosing the placement of windows and doors to selecting finishes and fixtures, the possibilities are endless.
Final Thoughts
Building a timber frame home is a significant investment, but the result is a unique and beautiful home that will last for generations.When it comes to choosing a floor plan, take the time to consider your lifestyle and needs,
and work with a professional to create a design that meets your vision. With the right floor plan, you can create a home that is both functional and beautiful.











